Biệt thự Vĩnh Phúc
Đặc điểm công trình:
| Hạng mục | Thông tin chi tiết |
| Tên công trình | Biệt thự Vĩnh Phúc |
| Loại công trình | Biệt thự gia đình |
| Chủ đầu tư | Chú Thể |
| Địa chỉ | Đường Chu Văn An, phường Liên Bảo, thành phố Vĩnh Yên, Vĩnh Phúc |
| Diện tích mặt sàn | 130 m²/1 mặt sàn, Gồm 3 tầng |
| Số phòng lắp đặt | 9 phòng |
| Tổng chi phí đầu tư | 280tr |
|
Thiết bị lắp đặt |
- Hệ thống điều hòa cục bộ âm trần nối ống gió |
| - Điều hòa cục bộ treo tường | |
|
Đặc điểm nổi bật |
- Giải pháp điều hòa cục bộ độc lập theo từng phòng, tối ưu công suất và kiểu dáng theo nhu cầu sử dụng |
| - Kết hợp dàn lạnh âm trần nối ống gió cùng cửa gió cao cấp, nâng tầm thẩm mỹ và đồng bộ thiết kế nội thất |
Phương án thiết kế công trình:
| Hạng mục | Nội dung chi tiết |
| Hệ thống điều hòa chính | Công trình sử dụng hệ thống điều hòa cục bộ rời, thiết kế độc lập cho từng không gian, mang lại khả năng kiểm soát linh hoạt: - Dàn lạnh âm trần nối ống gió sử dụng model Daikin FBFC, FBA - Dàn lạnh treo tường sử dụng model Daikin FTKB |
| Phân vùng hệ thống | Hệ thống được chia vùng theo mức độ sử dụng và yêu cầu thẩm mỹ: 1. Không gian ưu tiên thẩm mỹ cao như: • Phòng khách – bếp (Tầng 1) • Phòng ngủ Master và các phòng ngủ con (Tầng 2) → Lắp dàn lạnh âm trần nối ống gió để đảm bảo tính đồng bộ với nội thất. 2. Không gian ít sử dụng như phòng khách phụ, phòng ngủ dự phòng → Lắp điều hòa treo tường để tối ưu chi phí mà vẫn đảm bảo hiệu quả làm mát. |
| Mục tiêu thiết kế | Giải pháp thiết kế điều hòa tại biệt thự này hướng đến 3 mục tiêu cốt lõi: - Tối ưu công năng theo nhu cầu sử dụng thực tế từng phòng - Tiết kiệm điện năng nhờ khả năng vận hành riêng biệt, tránh hao phí khi không sử dụng - Đảm bảo tính liên tục, nếu một thiết bị gặp sự cố thì các khu vực khác vẫn hoạt động bình thường. → Khách hàng hoàn toàn yên tâm trong quá trình sử dụng, nhờ dịch vụ kỹ thuật kịp thời từ AirTech. |
Giải pháp kỹ thuật tối ưu từ AirTech:
| Hạng mục | Nội dung chi tiết |
| Yêu cầu kỹ thuật từ chủ đầu tư | – Hệ thống điều hòa phải vận hành ổn định, làm lạnh sâu và chia vùng điều khiển độc lập theo từng khu vực sử dụng. – Một số không gian quan trọng như phòng khách, phòng ngủ Master yêu cầu thiết bị giấu kín, đảm bảo tính thẩm mỹ nội thất cao cấp. – Hệ thống cần tiết kiệm điện năng, dễ bảo trì và bền bỉ trong quá trình sử dụng lâu dài. – Phương án thiết kế phải tối ưu chi phí, tương xứng với nhu cầu thực tế của gia đình. |
| Giải pháp từ AirTech | – Thiết kế hệ thống điều hòa cục bộ âm trần nối ống gió cho các không gian chính như phòng khách – bếp, phòng ngủ Master, phòng ngủ con,… để đảm bảo thẩm mỹ cao và làm lạnh sâu. – Sử dụng điều hòa treo tường cho các phòng phụ, ít sử dụng nhằm tối ưu chi phí đầu tư mà vẫn đáp ứng nhu cầu. – Tính toán công suất chi tiết theo diện tích và nhu cầu sử dụng của từng phòng, giúp tiết kiệm điện năng, tăng hiệu quả vận hành. – Thiết kế bản vẽ kỹ thuật đồng bộ: đường ống đồng, ống gió, dây tín hiệu,… phối hợp chặt chẽ với tiến độ thi công, đảm bảo đồng bộ từ phần thô đến giai đoạn hoàn thiện nội thất. |
AirTech triển khai bản vẽ thiết kế hệ thống điều hòa cho biệt thự Vĩnh Phúc với đầy đủ các hạng mục: đường ống đồng, ống gió, dây điều khiển,… phối hợp đồng bộ với các bước thi công kiến trúc và nội thất.



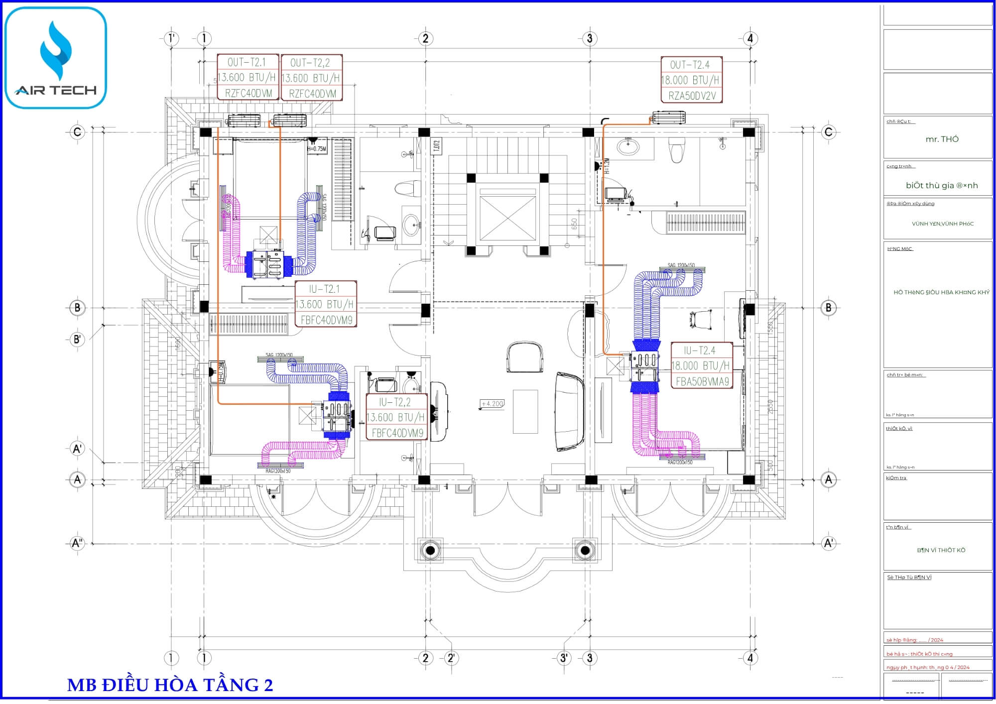
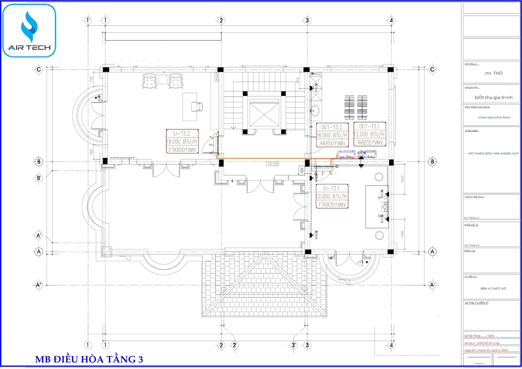
Cấu hình chi tiết hệ thống điều hòa tại biệt thự Vĩnh Phúc:
| Tổ | Thiết bị chính | Model | Công suất (Btu/h) | Vị trí sử dụng | Diện tích |
|
Tầng 1 |
Điều hòa cục bộ âm trần nối ống gió 1 chiều, inverter | FBFC100DVM9/ RZFC100DVM |
34.000 | Phòng khách +Sảnh | 45 m²/phòng |
| Điều hòa cục bộ âm trần nối ống gió 1 chiều, inverter | FBFC85DVM9/ RZFC85DVM |
29.500 | Phòng bếp ăn | 35 m²/phòng | |
| Điều hòa cục bộ âm trần nối ống gió 1 chiều, inverter | FBFC40DVM9/ RZFC40DVM |
13.600 | Phòng ngủ 01 | 17 m²/phòng | |
|
Tầng 2 |
Điều hòa cục bộ âm trần nối ống gió 1 chiều, inverter | FBFC40DVM9/ RZFC40DVM x2 |
13.600 | Phòng ngủ 02+ 03 | 17 m²/phòng |
| Điều hòa cục bộ âm trần nối ống gió 2 chiều, inverter | FBA50BVMA9/ RZA50DV2V |
18.000 | Phòng ngủ Master | 25 m²/phòng | |
|
Tầng 3 |
Điều hòa cục bộ treo tường 1 chiều, inverter | FTKB50YVMV/ RKB50YVMV |
18.000 | Phòng thư viện | 25 m²/phòng |
| Điều hòa cục bộ treo tường 1 chiều, inverter |
FTKB35YVMV/ RKB35YVMV |
12.000 | Phòng thờ | 17 m²/phòng |
Hình ảnh thi công lắp đặt hệ thống điều hòa âm trần ống gió và tại biệt thự Vĩnh Phúc:
1. Giao máy và lắp đặt phần thô
.jpg)
.jpg)
.jpg)
.jpg)
.jpg)
.jpg)
2. Ảnh hoàn thiện







Dự án liên quan