Biệt thự Văn Phú, Hà Đông
Đặc điểm công trình:
| Hạng mục | Thông tin chi tiết |
| Tên công trình | Biệt thự Hà Đông |
| Loại công trình | Biệt thự tư nhân 3 tầng |
| Địa chỉ | 12BT7, Khu đô thị Văn Phú, Hà Đông, Hà Nội |
| Diện tích mặt sàn | 250 m² |
| Số phòng lắp đặt | 11 phòng |
| Tổng chi phí đầu tư | 950 triệu đồng |
|
Thiết bị lắp đặt |
- Hệ thống điều hòa trung tâm VRV Daikin (dàn lạnh âm trần nối ống gió + cassette) |
| - Kết hợp hệ thống cấp khí tươi thu hồi nhiệt, lọc bụi mịn PM2.5 MIA | |
|
Đặc điểm nổi bật |
- Hệ thống điều hòa phân tổ giúp tối ưu điện năng, đảm bảo hoạt động độc lập từng khu vực. |
| - Không khí tươi được xử lý cân bằng nhiệt, lọc sạch bụi mịn, kiểm soát CO₂. | |
| - Sử dụng hệ thống điều hòa âm trần nối ống gió kết hợp cửa gió âm viền mang tính thẩm mỹ cao. |
I - Phương án thiết kế công trình:
| Hạng mục | Nội dung chi tiết |
| Hệ thống điều hòa chính | Công trình sử dụng điều hòa trung tâm VRV Daikin, kết hợp dàn lạnh âm trần nối ống gió FXSQ và âm trần cassette FXFQ nhằm đảm bảo tính thẩm mỹ, hiệu quả làm mát và linh hoạt trong thiết kế nội thất. |
| Phân vùng hệ thống |
Hệ thống điều hòa được chia thành 3 giải pháp chính: - Không gian sinh hoạt riêng tư như phòng ngủ khách, phòng ngủ gia đình được sử dụng 1 dàn nóng riêng nhằm đảm bảo tính độc lập khi vận hành. - Không gian sinh hoạt chung gồm phòng khách, bếp, phòng rượu, phòng giải trí sử dụng 1 dàn nóng riêng để tối ưu hiệu suất cho các khu vực đông người. - Phòng giúp việc là không gian biệt lập nên sử dụng máy điều hòa cassette cục bộ rời, đảm bảo tính riêng tư và tiết kiệm chi phí. |
| Mục tiêu thiết kế | Phân chia hệ thống theo khu vực giúp: - Tối ưu công năng sử dụng - Tiết kiệm điện năng - Đảm bảo tính liên tục khi vận hành: Trường hợp một tổ gặp sự cố, các tổ còn lại vẫn hoạt động bình thường, giúp gia chủ yên tâm sử dụng trong khi chờ AirTech đến kiểm tra và xử lý trong ngày. |
| Giải pháp thiết kế thông gió, khí tươi | Công trình được tích hợp hệ thống cấp gió tươi thu hồi nhiệt với các chức năng nổi bật: - Cân bằng nhiệt độ luồng khí đưa vào phòng - Lọc Cacbon và bụi mịn PM2.5 - Đo nồng độ CO₂ trong không khí Hệ thống này giúp đảm bảo nguồn không khí sạch, đạt chuẩn, đồng thời giảm tải cho hệ thống điều hòa và tiết kiệm điện năng đáng kể cho gia chủ. |
II - Giải pháp kỹ thuật từ AirTech
| Hạng mục | Nội dung chi tiết |
| Yêu cầu kỹ thuật từ chủ đầu tư | – Hệ thống điều hòa phải đảm bảo vận hành ổn định, làm lạnh sâu, phân vùng độc lập từng khu vực. – Đảm bảo tính thẩm mỹ, giấu kín thiết bị trong không gian nội thất cao cấp. – Cung cấp nguồn khí tươi sạch cho toàn bộ không gian khép kín, hạn chế khí tù, kiểm soát độ ẩm và bụi mịn PM2.5. – Tối ưu hóa tiết kiệm điện năng, dễ dàng bảo trì – bảo dưỡng sau vận hành. |
| Giải pháp từ AirTech | – Chọn hệ thống VRV Daikin chia 3 tổ độc lập, đảm bảo vận hành linh hoạt từng khu vực theo thói quen sử dụng thực tế. – Sử dụng dàn lạnh âm trần nối ống gió FXSQ và cassette FXFQ, đi kèm giải pháp giấu kín thiết bị, chỉ để lộ cửa gió – đảm bảo thẩm mỹ tuyệt đối. – Tích hợp hệ thống cấp khí tươi thu hồi nhiệt, lọc bụi mịn PM2.5, Cacbon, đo CO₂ – phù hợp tiêu chuẩn sống cao cấp và sức khỏe người sử dụng. – Tính toán công suất chính xác theo từng phòng và diện tích sử dụng, giúp tối ưu điện năng và giảm chi phí đầu tư. – Thiết kế bản vẽ chi tiết: đường ống đồng, ống gió, điện điều khiển, đảm bảo đồng bộ giữa các giai đoạn thi công (phần thô – hoàn thiện). |
AirTech lên giải pháp điều hòa + khí tươi chi tiết cho chủ đầu tư:
.png)
.png)
.png)
.png)
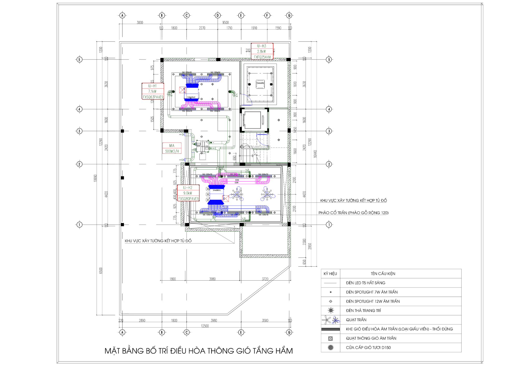
III - Cấu hình chi tiết hệ thống điều hòa + khí tươi
| Tổ | Thiết bị chính | Loại dàn lạnh | Công suất (Btu/h) | Vị trí sử dụng | Diện tích |
|
Tổ 1 |
Dàn nóng VRV 4S – RXYMQ8AY1 |
FXSQ32PAVE (x3) | 12.200 | Phòng ngủ 2 (T2), phòng làm việc (T3), phòng ngủ 4 (T3) | 15–18 m²/phòng |
| FXSQ40PAVE | 15.400 | Phòng học – sinh hoạt chung (T2) | 18–23 m² | ||
| FXSQ63PAVE | 24.200 | Phòng ngủ 1 (T2) | 35 m² | ||
| FXFQ25AVM (Cassette) | 9.600 | Phòng ngủ khách (tầng hầm) | 10 m² | ||
|
Tổ 2 |
Dàn nóng VRV H – RXYQ10BYM |
FXSQ63PAVE | 24.200 | Phòng bếp (T1) + Phòng giải trí (tầng hầm) | 30–35 m² |
| FXSQ80PAVE | 30.700 | Phòng rượu (tầng hầm) | 35–40 m² | ||
| FXSQ100PAVE | 38.200 | Phòng khách + sảnh (T1) | 40–45 m² | ||
| Tổ 3 (Không gian độc lập) |
Điều hòa âm trần cục bộ rời | FFFC35AVM (Cassette) | 12.000 | Phòng giúp việc | 15 m² |
| Hệ thống khí tươi thu hồi nhiệt | Tích hợp song song | Lắp song song tại tất cả các phòng có điều hòa | Đảm bảo toàn bộ khu vực sinh hoạt & nghỉ ngơi được cấp khí sạch, cân bằng nhiệt, lọc PM2.5, Cacbon và kiểm soát CO₂ |
IV - Hình ảnh thi công lắp đặt hệ thống điều hòa, khí tươi tại biệt thự Hà Đông:











.jpg)
.jpg)




















